本来作业场所安装的固定式钢梯和平台是为人员通行、作业提供便利和安全保障的,可目前很多企业安装的固定式钢直梯、钢斜梯、防护栏杆和工业平台都不完全符合国家标准要求,导致带来诸多安全隐患!
你能看出下面这些网络搜索到的钢梯及平台图片哪里不符合要求吗?
|
如果你看不到上面这些图片中的安全隐患,建议您详细阅读下文,了解工作场所中钢直梯、钢斜梯、防护栏杆和平台的安装要求。
一、钢直梯
| 1、钢直梯示意图
|
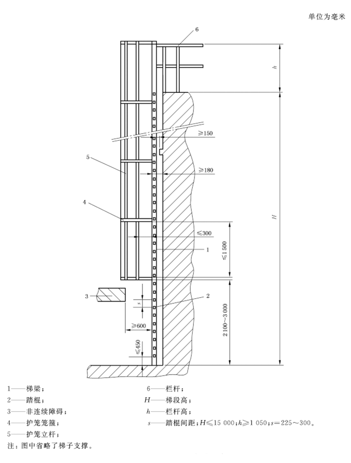
| 2、钢直梯安全护笼示意图
|
| 3、钢直梯安装要求
|
二、钢斜梯
| 1、钢斜梯示意图
|
| 2、钢斜梯安装要求
|
三、工业防护栏杆和平台
| 1、工业防护栏杆示意图
|
| 2、工业防护栏杆及钢平台安装要求
|
根据上文标准要求,您找出来的安全隐患都对了吗?
|
依据法规/标准:
《固定式钢梯及平台安全要求 第1部分:钢直梯》(GB 4053.1-2009)
《固定式钢梯及平台安全要求 第2部分:钢斜梯》(GB 4053.2-2009)
《固定式钢梯及平台安全要求 第3部分:工业防护栏杆及钢平台》(GB 4053.3-2009)
















