蓄冷空调技术,是利用夜间电网低谷时段开启制冷主机,将建筑物空调所需的冷量以冰的方式储存起来,白天电网高峰时,进行融冰供冷的空调系统。

蓄能空调必要性:
气候的季节性变化和空调使用的特点决定了空调用电负荷在不采用蓄能技术的前提下,必然存在较大的峰谷差。蓄能空调系统技术,是转移高峰电力、开发低谷用电,优化资源配置、提高综合能效,保护生态环境、符合国家发展战略与政策的一项重要技术措施。
蓄冷空调的典型分类:

冰蓄冷系统分类:

冰盘管式:

冰片滑落式、冰晶式:

容积式:

融冰机理:

过冷水式动态冰浆蓄冷技术:

动态制冰的基本技术过程:

水的过冷特性:
水的冰点在标准大气压下为0℃,但温度降到0℃时并不立即结冰,而是低于0℃以下的某个温度点才开始结冰,低于0℃的差值就是过冷度。过冷度的大小决定于水的初始条件和外界环境。

促晶技术(解除过冷却,生成冰浆):

冰核传播原理—过冷水中一旦有局部地方生成冰晶,则冰晶将具有迅速向各个方向蔓延到整个过冷水域的强烈趋势。

冰核防传播方法:

动态冰蓄冷高融冰速率使得尖峰负荷时段融冰单独供冷模式简单实现。

传统静态盘管冰往往无法实现在负荷尖峰时段单独融冰供冷(即有冷放不出),因而不得不采用与双工况主机串联等系统设计方式来满足尖峰用冷时段的供冷问题,使得系统设计复杂,而且能耗水平高,运行经济性大打折扣。
动态冰蓄冷的高放冷速率使得任何时候均可实现融冰单独供冷模式,无须采用与主机串联等复杂和耗能的系统设计。
可简单灵活实现的其他系统运行模式:


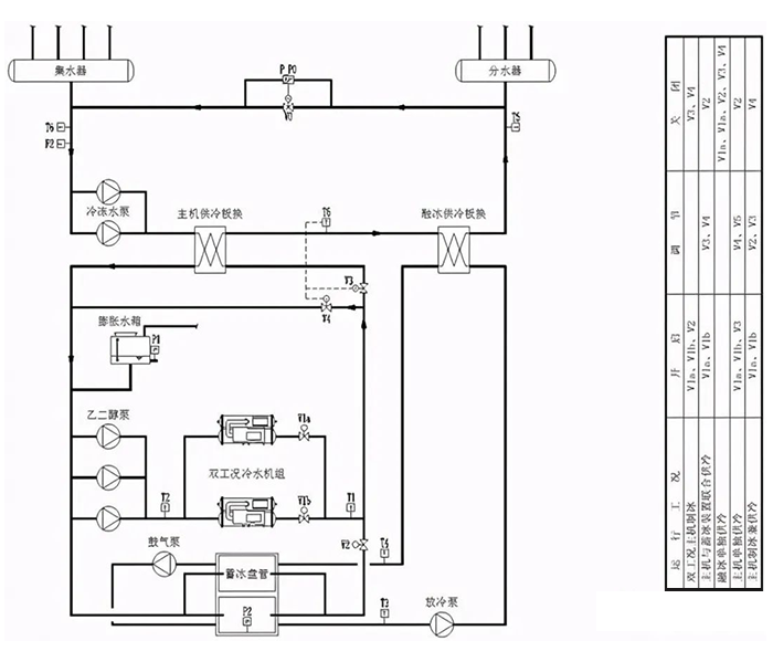
冰蓄冷系统流程一般形式:


串联主机上游系统流程特点:
乙二醇系统供水温度低,根据要求可以提供2~4℃的低温乙二醇。
制冷主机效率高,较并联流程提高3~4.5%,较主机下游串联流程提高9%。
乙二醇侧大温差设计,较并联流程减小了乙二醇泵、管路及附件规格。
系统乙二醇填充量约为冰球或冰板系统的1/4。
系统控制简单,可以轻松实现各种工况切换及根据负荷情况选择主机优先或融冰优先的控制模式。
系统运行能耗低。
系统流程更简单,布置紧凑,简化施工及维护管理。
并联系统流程:

串联单级泵系统流程:

串联双级泵系统流程:

串并联系统流程:

外融冰系统流程:

系统控制策略及特点:
分量蓄冷系统的控制较复杂,除了保证蓄冷工况与供冷工况之间的转换操作以及空调供水温度控制以外,主要应解决制冷主机和蓄冷装置之间的供冷负荷分配问题,充分利用蓄冷系统节省运行费用。常用的控制策略有三种,即:主机优先,融冰优先和优化控制。
制冷主机优先:

制冷主机优先控制特点:
主机满负荷运行,冷量不足由融冰补充;
在部分负荷时,主机出水温度下降,效率降低;
随着建筑物的负荷的降低,蓄冷装置的使用率也会降低,不能有效的削减峰值用电而节约运行费用;
控制简单,运行可靠。
融冰优先:

融冰优先控制特点:
蓄冰装置按要求提供冷量,冷量不足由主机补充,主机经常运行在部分负荷下。
主机出水温度设定较高,效率较高;
随着建筑物的负荷的降低,蓄冷装置的使用率能得到保证,能有效的削减峰值用电而节约运行费用;
控制较主机优先复杂,如果不能解决好释冷量的在时间上的分配问题,可能造成在某些时间段总的供冷能力不足。
冰蓄冷设计与计算:
1、工程概况:建筑性质、规模(面积、层高)、机房位置、变配电房、冷却塔位置、设备层承载、末端管材、末端定压方式等。
尖峰负荷、使用时间、电价时段、供回水温度等。
2、负荷确定:软件计算;逐时负荷系数;类似工程;由甲方提供的设计院计算数据。
3、系统流程选择(典型形式)
冰蓄冷流程:冰球并联流程、蓄冰盘管串联流程。
设备选型配置:
1、设备品牌:
a.制冷机组:约克、特灵、顿汉布什、麦克维尔、克莱门特;
b.水泵(乙二醇泵、冷冻水泵、冷却水泵、蓄热水泵、供热水泵、生活热水循环泵):南方泵业、格兰富(PACO)、ITT、威乐;
c.板换:SWEP、APV、ALFALAVAL;
e.蓄冰装置:源牌产品、BAC钢盘管、益美高钢盘管、FACO塑料盘管、高灵冰筒、西亚特冰球;
f.蓄热装置(方形水箱、圆形水箱);
g.冷却塔:上海良机、上海金日、上虞联丰、广州马利;
h.定压装置(乙二醇、冷冻水);
i.管道及分、集水器。
2、设备容量:
a.为解决夜间蓄能期间末端负荷所设的基载,其容量按夜间末端最大负荷确定;
b.白天末端负荷较大,受蓄能空调能力所限,大部分的负荷由常规基载提供的系统,其基载容量按尖峰负荷减去蓄能空调所能提供的最大容量;
c.板换换热量为尖峰负荷减去基载容量,系统没配置基载时即为尖峰负荷;
d.蓄能水泵应满足板换换热量和主机容量的要求,冷热水循环泵应满足末端负荷的要求;
e.蓄能主机应满足蓄能容量的要求以及联供时所承担的负荷;
f.蓄能装置应满足避峰单供时或联供时所承担的负荷。
g.冷却塔及冷却泵应满足当地室外湿球温度下所需处理冷水机组的散热量进出口5℃温差时的冷却水量。(其中散热量为主机名义下的制冷量和电机的功率,实际上还包括冷却水泵的输入功率)
h.乙二醇定压装置应按系统容积25%乙二醇溶液在16℃与-10℃不同温度下的密度来计算膨胀量,确定气压罐或开式系统中的水箱容积。
i.末端管路膨胀量,冷冻水约0.1L/kW,热水约0.3L/kW。
j.冰球系统蓄冰槽容积按蓄冰量的0.072m3/RTH,纯乙二醇量按0.9~1T/100RTH进行估算。
k.盘管系统纯乙二醇量:品牌盘管0.2T/100RTH,BAC盘管0.247T/100RTH。
l.常规空调供回水温度7/12℃,供热供回水温度60/50℃。
m.制冰温度:盘管系统-5.5℃,冰球系统-6.7℃。
n.板换乙二醇侧进出口温度:盘管3.5℃/10.5~11℃,冰球系统5℃/10℃。
3、设备台数:
a.配置螺杆冷水机组时,最多考虑三~四台。对于供冷规模较大的系统,可考虑大型制冷量的离心式冷水机组。
b.水泵与主机一对一设置(大型主机可考虑二台水泵与一台主机相对应)
c.蓄能装置蓄能量大小以主机出力(低谷电时段)、场地大小以及初投资确定。
d.板换基本上与主机一对一或少于主机台数,单台换热量大于4000kW时考虑一分为二,变成二台。从安全、可靠运行的角度来看选用多台使用互备较好,但投资增加。
e.冷却塔与主机一对一设置。
4、水泵扬程估算
a.乙二醇回路,主机蒸发器、盘管、板换(乙二醇侧)压降按样本或厂家提供的计算书,管道估算8米,富裕2米,总扬程在32米~45米之间。
一级泵系统乙二醇泵扬程负担蒸发器、盘管、板换(乙二醇侧)以及所有乙二醇管路的压降。
二级泵系统初级泵负担蒸发器、盘管以及部分乙二醇管路;次级泵系统负担板换以及部分乙二醇管路。
b.冷冻水回路,板换(水侧)压降、基载蒸发器压降按样本或厂家提供的计算书,管道(机房、末端管网)估算22米,总扬程在32米~38米之间。
c.冷却水回路,主机冷凝器压降、冷却塔扬程按样本或厂家提供的计算书,管道估算6米,富裕2米,总扬程在22米~28米之间。
以上乙二醇管路和冷冻水管路为闭式系统,管路系统水泵扬程计算时与管道垂直距离无关,而冷却水管道大多数为开式系统,需考虑低位的水(冷却塔集水盘)提升到管路系统最高点的高差,一般在厂家样本中有冷却塔扬程。
设计制图:
1、现场或建筑图勘察
a.了解冷冻机房和锅炉所在位置。
b.机房的层高(该层楼面间的高度),扣除梁高的的净高。
c.设备吊物孔或运输通道。
d.冷、热水管道走向。
e.大楼总高度。
f.冷却塔放置位置。
g.配电室位置,低配动力电缆至机房的走向。
h.排水集水井位置、大小。
2、设备布置
a.控制室靠近大楼的配电间,控制室内主要设备为电气专业的动力柜、系统柜和上位机控制台,面积约18m2。
b.冷水机组、电锅炉应与控制室相近,减少动力电缆的长度。
c.冷水机组考虑其中一侧检修抽管空间(纵向),卧式电锅炉两端留大于900mm的电热管更换空间,立式电锅炉留在锅炉的上方。
d.冷热系统同处一个机房的应划分好区块,将冷热分块布置,有利于管路设计和操作管理。
e.蓄冰装置和蓄热装置应尽量远离控制室,靠墙角布置。
f.系统设有燃油燃气锅炉应单设锅炉房,与冷冻机房隔墙隔开。
g.水泵应集中布置,乙二醇泵、冷却水泵靠近主机,冷冻水泵靠近板换和分、集水器,减少管道交叉。
h.分、集水器应靠近管道出机房至管井的位置
i.设备间距:机房面积允许的话尽可能将设备间的距离拉大(可参见规范要求),保证设备巡检和维修通道。一般情况下(通常蓄能机房机房偏小),水泵基础之间保证700 mm,电机端基础距墙400mm,泵端接吸入管后留有≥1200mm的通道。冷水机组前后基础之间距离≥1500 mm,距墙≥1000mm,控制面板前应足够的巡视空间。电锅炉前后基础之间距离≥1200mm,后距墙≥600mm,动力系统柜前应足够的巡视空间。方形蓄冷热水箱离墙侧。
尽可能地贴近墙面,留出100mm空间可进行发泡保温即可,但注意左右配管水箱应有足够的接管空间。蓄冰装置之间留有100~150mm的净空,便于现场安装就位,盘管设有液位显示的一端应保证足够的巡视空间。分、集水器尽可能布置在一起,沿纵向靠墙布置。
j.冷却塔应放置在裙房的屋顶,四周空旷,有良好的通风条件。
3、管道接管
a.严格按流程和设计要求进行连管。
b.管道绘制采用双线图表示,按真实尺寸进行管道连接,尽可能考虑到现场安装细节。
c.受高度空间的限制,管道竖向按二层布管,最多不要超过三层。
d.多台设备(如水泵、冷水机组、电热水锅炉、蓄冰盘管等)并联接管时尽可能按同程连接,而在遇到开式多台(常压)设备(如冷却塔、蓄热蓄冷水箱、常压锅炉等)并联接管时不必刻意同程连接,这样会适得其反。
e.不同高度而同一方向的管道尽可能布置成同一水平管位,可以节省管道的支、吊架。
f.管道布置时尽可能沿建筑物的墙、柱、梁布置,便于设置支吊架。
g.蓄冰槽槽体内布管(分配管)可采用左右流的沿槽体纵向两端部进行布管,也可以采用上下布管。蓄热槽均采用上下布管。
相关规范、图集:
JGJ158-2008《蓄冷空调工程技术规程》
06K610《冰蓄冷系统设计与施工图集》
冰蓄冷相关工程项目实例:
系统流程:

管道平面:

水蓄冷空调原理:
利用水的显热来储存冷量,水经过冷水机组冷却后储 存于蓄冷槽中用于次日的冷负荷供应,即夜间制出4℃左右的低温水。
在白天空调负荷较高时,自动控制系统决定制冷主 机和蓄冷槽的供冷组合方式,尽量在白天峰电时段 内由蓄冷槽供冷,不开或者少开制冷主机,以降低空调系统的运行费用。
与冰蓄冷技术相比,水蓄冷技术在某些方面具有其优势:
采用标准型冷水机组,运行效率高;
运行费用低廉;
与原有制冷站兼容性好;
兼有消防水池功能;
初投资费具有竞争力,甚至低于常规空调系统。
蓄冷装置形式:

当前水蓄冷技术:
在实际水蓄冷系统工程中,常采用以下三种技术方案。
第一种是直接蓄冷间接放冷系统,如图1所示,制冷机和蓄冷槽都在一次侧,二次侧是冷水循环系统。制冷机和蓄冷水槽都通过板式换热器与用户二次侧隔开,一次侧是由蓄冷水槽内水位定压的开式系统,二次侧是闭式系统。其优点是板式换热器两侧各自成循环系统,运行稳定可靠;缺点是板式换热器面积大, 投资高,而且制冷机单供时,需要通过板式换热器,有换热损失,所以制冷机的工作效率比较低,系统的经济性比较差。但由于其运行安全稳定,所以国内外依然有很多应用实例。

图1 直接蓄冷间接放冷的水蓄冷系统原理图
第二种是无板式换热器系统,即整个水蓄冷系统都是开式系统。这种系统蓄冷放冷的温差最大,冷量利用率最高,没有换热损失,而且管路相对比较简单,投资也较小,经济性较高。图2即为其中的一种系统形式。但是由于蓄冷水槽一般处于系统的低位,该系统必须依靠阀门V6保证阀前压力为楼层高度的静水压力,这样才能保证末端系统全部充满水,在供水高度较大时,该阀门两侧的压差会过大,使阀门的操作动作和灵敏度受到很大的限制,特别是在阀门开启和关闭的瞬间。严重时甚至会损坏阀门的电动执行机构。
另外在停机时,如果阀门V4,V5,V6关不严,系统的水会在重力作用下泄到蓄冷水槽内,又接着从蓄冷水槽的溢流管泄到机房内。所以,这种系统有较大的运行风险。因此该系统通常只用于一些楼层较低的建筑,而在中高层建筑上几乎不被使用,因为楼层越高,阀门两侧的压差越大,风险越大。

图2无板式换热器的水蓄冷系统原理图
第三种是制冷机直接供冷和直接蓄冷的半开半闭式系统,如图3所示,制冷机和蓄冷水槽用电动阀门V1,V2,V3,V4 与二次侧系统隔开。当制冷机单供时,关闭电动阀门V3,V4,开启电动阀门V1,V2,使主机处在二次用户侧;当制冷机蓄冷时,关闭电动阀门V1, V2,开启电动阀门V3,V4,使主机处在一次侧;而蓄冷水槽是通过板式换热器向二次用户侧进行间接放冷。该系统的优点是制冷机单供时和蓄冷时没有板式换热器的损失,效率很高;但是由于二次侧和一次侧的界限是随工况变化的,工况的改变完全靠这几个电动阀门的转换,所以部分工况转换时阀门的一端是开式系统、另一端是闭式系统,这两侧会有较大的压力差,图3中的阀门V1,V2,V3,V4 也都存在着第二种系统的问题。因此这种系统在中高层建筑上使用也有一定风险。

图3 直接蓄冷直接供冷的水蓄冷系统原理图
间接蓄冷直接供冷式水蓄冷系统工作原理:
针对上述三种常用水蓄冷系统中存在的不足,一种制冷机直接供冷间接蓄冷的水蓄冷空调系统(见图4,以下简称第四种水蓄冷系统)。该系统由两个相互独立的系统组成,一个是在板式换热器二次侧的蓄冷放冷回路,另一个就是一次侧的常规空调系统,这两个系统是通过板式换热器隔开的,制冷机既可以直接供冷水给末端系统,又可以通过板式换热器来蓄冷,这样既避免了第二种和第三种水蓄冷系统中阀门两侧压差大的问题,又解决了第一种水蓄冷系统中制冷机单供时换热损失的问题,而且运行起来非常稳定和安全。

图4 间接蓄冷直接供冷的水蓄冷系统原理图
以上小段节选自徐齐越,王琳,曾飞雄,范新《间接蓄冷直接供冷式水蓄冷系统》。
影响水蓄冷性能的主要因素:
蓄冷温差:
蓄冷量随温差加大而增加。
温差增大,温水与冷水的密度差也增大,水的分层更容易。
大温差减小了经过冷水槽的流量,使分层得到强化。
大温差减小输送泵能耗。
斜温层厚度,斜温层厚度取决于布水器的设计和斜温层的时效。
斜温层导热,通过槽壁导热,斜温层会膨胀或衰退。如果让已蓄好冷的水罐闲置,斜温层会最终衰退到 槽中的水达到不可利用的温度。
开式流程使水泵能耗增加:
采用直接从蓄冷罐将冷冻水输送至建筑物空调端,回水管处于泄压状态。无法利用静压,致使水泵扬程提高,能耗增加。

闭式流程使水温损失1~2℃:
使用热交换器是一种解决方法。但冷冻水温度提高了1~2℃,即水蓄冷温差损失了1~2℃,使水冷蓄可利用温差仅为 6~7℃。增加了蓄冷罐体积。
换热器两侧的水在被泵送时吸收的热量成为系统的附加负荷 。

水蓄冷核心技术(一):布水器
常用布水器的型式有:八边式、H式,径向盘式和连续槽式等。八边式适用于圆柱体蓄水罐。H式适用于方形蓄水罐。
在自然分层的蓄冷形式一般希望斜温层厚度在0.3-1.0m之间,为了防止水的流入和流出对储存冷水的影响,在自然分层水蓄冷罐中采用的布水器应使水流以较小的流速均匀地流入蓄冷罐,以减少对蓄冷罐水的扰动和对斜温层的破坏。因此,分配水流的布水器也是影响斜温层厚度变化的重要因素。

(二):蓄冷槽保温

混凝土池举例,外保温大样。
外保温对分层的影响:
常用的蓄冷罐为钢罐或混凝土罐,钢罐的壁面由于很薄不能蓄很多热量,罐壁传递的热量通过斜温层,并随储存时间的延长而增厚。从而减少实际可用蓄冷水的体积,减少可用蓄冷量。
钢罐材料的高导热系数会影响蓄冷效率,如果保温不佳,从底部和侧壁传入的热量可能形成水温分布的逆转,从而诱发对流,破坏分层效果。
混凝土罐的热绝缘性好,但蓄热量大,导致斜温层衰退。

水蓄冷与冰蓄冷的比较:






