
专业规划的好处:
综合企业生产与需求进行全面系统规划
减少后续不断的布局变更导致资金的浪费
用经济的方式进行有效生产和管理
提高食品安全卫生管理水平等
非专业规划的坏处:
未能系统地满足监管部门、客户等相关方要求
缺乏系统规划造成初期建设不必要浪费
后续硬件重新改造导致直接浪费
给后续食品卫生管理留下缺陷或增加困难
增加生产运作成本(如物流)等
工厂食品卫生规划的原则
◆ 规划设计与食品安卫生管理相结合
◆ 生产流程与布局合理优化
◆ 加工区域的食品卫生等级合理化
◆ 建筑结构对食品卫生影响最小化
◆ 注重食品卫生设施/设备的细节
◆ 规划设计与生产效率相结合
◆ 人流/物流/气流对食品卫生影响最小化
◆ 交叉污染控制合理化
◆ 确保加工用水/冰/蒸汽的安全卫生
工厂食品卫生规划涉及的内容
◆ 加工产品确认
◆ 生产能力确认
◆ 产品工艺确认
◆ 产品加工流程合理化
◆ 加工区域的食品卫生等级规划
◆ 生产人流、物流、气流规划
◆ 生产设备选择及食品卫生评估
◆ 生产设备布局规划
◆ 食品接触容器/工器具评估与配置
◆ 食品车间安全卫生设施规划
设施规划
供水、排水
通风、排气
采光、照明
卫生设施与设备
清洗消毒设施与设备
更衣洗手设施与设备
物料传递设施与设备
废料处理设施与设备
清洁工器具配置
装修材料选择与装修建议等
工厂食品卫生规划提交客户成果
◆ 工厂食品安全卫生规划设计书
◆ 产品说明
◆ 产品加工流程图
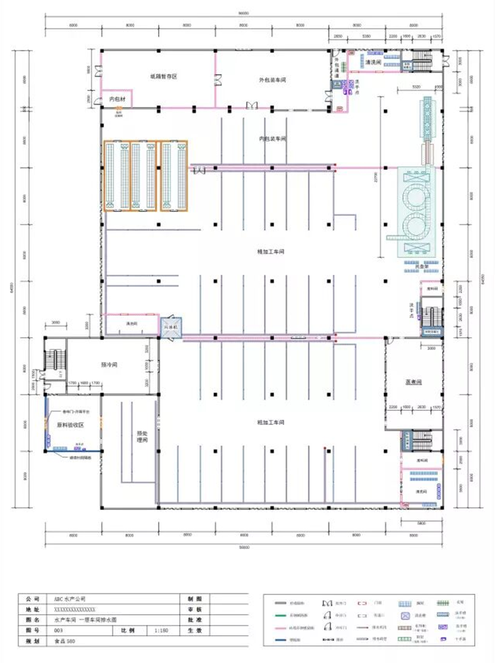
◆ 车间平面布置图
◆ 车间人流/物流图
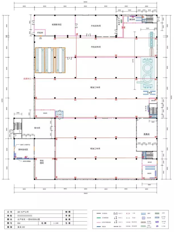
◆ 车间供水/排水网络图
◆ 车间卫生设施/设备配置建议
◆ 车间照明配置等案例成果
一层平面布置图

一层排水图

一层供水图

二层更衣室


