1、一次结构套管预埋
工艺流程:
熟悉图纸→制作套管→定位固定→技术复核→安装成型→成品保护
控制要点:
(1)套管安装尽量避免损坏或切断钢筋。
(2)套管埋设时要固定牢固,防止浇筑混凝土时套管发生移位;楼板套管可用铁丝、铁钉固定;穿墙、梁套管须增加副筋绑扎固定。
(3)套管预留预埋必须严格控制标高和位置,特别是重点部位如地下室外墙、水池外壁。
示例照片:

2、水平管线支架安装
2.1 槽架水平支架
工艺流程:
先决条件检查 →结合现场深化设计→对各专业管线进行综合布置→确定支架间距及过载计算→计算支吊架尺寸及选材→设计综合支吊架方案及大样图→支、吊架预制 →支、吊架焊接→ 现场定位放线→ 钻孔→底板固定→支、吊架安装→支、吊架固定→支、吊架调整。
控制要点:
(1)水平安装的支架间距宜为 1.5m~3.0m,垂直安装的支架间距不应大于 2m。采用金属吊架固定时,圆钢直径不得小于 8mm,并应有防晃支架,在分支处或端部 0.3m~0.5m
处应有固定支架。
(2)地下室的全牙丝杆套热缩套做防锈处理(创优项目推荐)。
(3)走廊、通道等部位在布置槽架时,宜预留 300mm 以上的空间用于电缆敷设及检修。
示例照片:

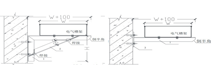
2.2 槽架沿墙水平安装
工艺流程:
先决条件检查→结合现场深化设计→对各专业管线进行综合布置→确定支架间距及过载计算→计算支吊架尺寸及选材→设计综合支吊架方案及大样图→支、吊架预制 →支、吊架焊接→ 现场定位放线→ 钻孔→底板固定→支、吊架安装→支、吊架固定→支、吊架调整
控制要点:
(1)斜撑角度一般为 45°,在空间狭窄时,不应小于 30°。
(2)桥架宽度在 300mm 以内时,可采用悬臂式支架。
(3)角钢支架,倒小圆角或切小斜角。
示例照片:

2.3 吊杆式水平管道支架
工艺流程:
先决条件检查 →结合现场深化设计→对各专业管线进行综合布置→确定支架间距及过载计算→计算支吊架尺寸及选材→设计综合支吊架方案及大样图→支、吊架预制 →支、吊架焊接→ 现场定位放线→ 钻孔→底板固定→支、吊架安装→支、吊架固定→支、吊架调整
控制要点:
(1)根据管道材质和大小,按规范设置间距。
(2)槽钢支架上下分别设置螺母固定。
(3)使用该类型支架需按规范增设固定支架防止晃动。
示例照片:

2.4 大型管道水平支架
工艺流程:
先决条件检查 →结合现场深化设计→对各专业管线进行综合布置→确定支架间距及过载计算→计算支吊架尺寸及选材→设计综合支吊架方案及大样图→支、吊架预制 →支、吊架焊接→ 现场定位放线→ 钻孔→底板固定→支、吊架安装→支、吊架固定→支、吊架调整
控制要点:
(1)管道规格 DN300 及以上的多根大型管道排布,横担使用H 钢(优先选用 Q345),吊杆使用槽钢(选用 Q235)。
(2)支吊架吊杆使用槽钢,不得使用角钢或丝杆。
(3)后置埋件使用化学螺栓固定,不宜使用膨胀螺栓。
(4)大型管道支吊架不得在楼板底生根,必须要在梁侧或柱侧生根。
(5)槽钢与 H 钢搭接处,要对 H 钢进行切口处理,搭接缝隙要均匀,且所有缝隙要双边满焊。
示例照片:

2.5 热力管道水平管固定支架
工艺流程:
先决条件检查 →结合现场深化设计→对各专业管线进行综合布置→确定支架间距及过载计算→计算支吊架尺寸及选材→设计综合支吊架方案及大样图→支、吊架预制 →支、吊架焊接→ 现场定位放线→ 钻孔→底板固定→支、吊架安装→支、吊架固定→支、吊架调整
控制要点:
(1)适用于管道直径φ57~530 之间,温度≤350℃的蒸汽、热水、蒸汽凝结水、压缩空气及低温管道的支座设计、加工及安装。
(2)与梁连接的钢板应尽可能较长,增大螺栓之间的距离。
示例照片:

3、垂直管线支架安装
3.1 槽架沿墙垂直安装
工艺流程:
先决条件检查 →结合现场深化设计→对各专业管线进行综合布置→确定支架间距及过载计算→计算支吊架尺寸及选材→设计综合支吊架方案及大样图→支、吊架预制 →支、吊架焊接→ 现场定位放线→ 钻孔→底板固定→支、吊架安装→支、吊架固定→支、吊架调整
控制要点:
(1)支架连接板(钢板)四角倒小半角。
(2)沿墙垂直安装槽架宽度(W):W≤400mm 时,用 L30x3角钢;400mm<W≤600mm,用 L40x4 角钢;600mm<W≤800mm,用L50x5 角钢;800mm<W≤1200mm,用[6 槽钢。
(3)当≥2 条槽架共用同一支架时,槽架支架的宽度为:W 总=W1+ +Wn+(n-1)x50mm。
(4)敷设在电气竖井内的电缆梯架或托盘,其固定支架不应安装在固定电缆的横担上,且每隔 3 层~5 层应设置承重支架。
示例照片:

3.2 垂直管道多管道支架
工艺流程:
先决条件检查 →结合现场深化设计→对各专业管线进行综合布置→确定支架间距及过载计算→计算支吊架尺寸及选材→设计综合支吊架方案及大样图→支、吊架预制 →支、吊架焊接→ 现场定位放线→ 钻孔→底板固定→支、吊架安装→支、吊架固定→支、吊架调整
控制要点:
(1)角钢宜选用等边角钢,材质优先选用热镀锌角钢,转角处应采用煨弯,不得切断。
(2)支架不允许用角钢做连接板搭接,可利用等离子切割钢板或场外加工钢板。
(3)角钢与连接板搭接位置应全部满焊,并做好防腐处
理。
(4)同一区域支架形式、倒角样式及连接板做法须要保
持一致。
(5)支架螺栓孔洞使用冲床加工,为便于管道安装,可加工为椭圆孔。
示例照片:

3.3 冷热水管道竖向导向支架
工艺流程:
先决条件检查 →结合现场深化设计→对各专业管线进行综合布置→确定支架间距及过载计算→计算支吊架尺寸及选材→设计综合支吊架方案及大样图→支、吊架预制 →支、吊架焊接→ 现场定位放线→ 钻孔→底板固定→支、吊架安装→支、吊架固定→支、吊架调整
控制要点:
(1)暖通用冷热水立管支架固定采用槽钢底座加 U 型抱卡,固定螺母深入槽钢外漏丝扣 2~3 丝。
(2)镀锌扁钢抱箍不宜拧紧,以防管道伸缩时对木托造成损坏或移位。
(3)支架掌板安装点应首选结构梁或剪力墙,支架的安装高度,距地面应为 1.5~1.8m,2 个以上的支架应匀称安装。
(4)支架所选用的型钢不得切断,转角处煨弯处理,支架应进行防腐处理。
示例照片:

3.4 空调水管道垂直承重支架
工艺流程:
先决条件检查 →结合现场深化设计→对各专业管线进行综合布置→确定支架间距及过载计算→计算支吊架尺寸及选材→设计综合支吊架方案及大样图→支、吊架预制 →支、吊架焊接→ 现场定位放线→ 钻孔→底板固定→支、吊架安装→支、吊架固定→支、吊架调整
控制要点:
(1)管道支架选型须进行受力计算后选择,支架焊缝满足焊接工艺,镀锌紧固螺丝选用满足要求。
(2)支架底部据地面完成面大于 150mm。
(3)支撑板与承重支架间垫有 50mm 的绝热木方。
(4)管道设有补偿器,承重支架设于补偿器上方。
(5)做好的支架刷防腐漆,同时进行必要成品保护。
示例照片:

4、抗震支架安装
工艺流程:
施工准备工作→定位放线→切割钻孔→抗震支吊架预支→抗震支吊架安装→抗震支吊架调整→安装后检查
控制要点:
(1)严禁在安装时使抗震支架强行挤压其他管线或改变垂直吊杆的角度,不得影响其他管线的使用功能与抗震支架的抗震效果。
(2)抗震支架安装时,吊杆螺纹应完整。螺栓、六角螺母与吊杆三者间的连接应牢固稳定。
(3)对于侧向、纵向抗震支吊架,其斜撑的安装垂直角度宜为 45°,且不得小于 30°。
(4)加劲装置安装时,加劲装置安装位置及数量应符合标准。
(5)了解安装工作所在楼层的楼板厚度,以便安装螺栓时能够在不穿透楼板的情况下确保螺栓的作用。
(6)安装抗震支架的锚栓只可固定在剪力墙,梁或钢结构梁,承重柱上,严禁将斜撑安装到砖墙一类的建筑结构上。
(7)抗震支吊架采用锚栓的有效锚固深度应为 80mm~ 100mm,抗震支吊架冷弯 U 型槽钢内缘须有锥形齿牙,深度不低于 0.9mm,抗震管夹厚度应不低于 5mm,宽度不低于 40mm。
(8)对于消防系统(消防喷淋、消火栓系统以及防排烟)的抗震支吊架,产品应通过消防产品耐火测试,耐火时间不少于 90 分钟。
示例照片:

5、机电管线防火封堵
5.1 电缆桥架穿电井墙孔有机堵料防火封堵
工艺流程:
核对施工图→统计安装位置→材料准备→人员组织→机具准备→施工制作→质量检验
控制要点:
(1)根据孔洞尺寸和桥架形状裁切出两块防火板,四周至少多出 25mm。
(2)在孔洞四周涂抹柔性有机防火堵料,宽 25mm,厚度不小于 4mm。
(3)用带垫圈的螺丝钉固定防火板,固定位置为四个角和四周每隔 200mm 处。
(4)将电缆、桥架、防火板之间的缝隙用柔性有机防火堵料密封。
(5)非电气井的墙,采用岩棉封堵即可。
示例照片:

5.2 桥架穿楼板防火封堵
工艺流程:
核对施工图→统计安装位置→材料准备→人员组织→机具准备→施工制作→质量检验
控制要点:
(1)电缆竖井应采用矿棉板加膨胀型防火堵料组合成的膨胀型防火封堵系统,防火封堵的耐火极限不应低于楼板的耐火极限。
(2)穿电气竖井时,应使用防火泥或防火包,不得使用岩棉。
(3)封堵处应采用角钢或槽钢托架进行加固,且应将支架涂刷防火涂料。
示例照片:

5.3 穿楼板套管防火封堵
工艺流程:
核对施工图→统计安装位置→材料准备→人员组织→机具准备→施工制作→质量检验
控制要点:
(1)管道穿过非卫生间或厨房楼板,应设置金属或塑料套管。
(2)安装在楼板内的套管,其顶部应高出装饰地面 20mm。
(3)套管与管道之间缝隙应用阻燃密实材料和防水油膏填实,端面光滑。
(4)所有穿越井道的管道套管处,应做不低于楼板耐燃强度的防火封堵。
示例照片:

5.4 水平风管穿隔墙防火封堵
工艺流程:
核对施工图→统计安装位置→材料准备→人员组织→机具准备→施工制作→质量检验。
控制要点:
(1)钢套管和封堵材料应与完成面平齐;风管套管表面采用防火板封堵做法。
(2)风管外包防火板与套管防火板封堵处缝隙使用防火泥进行封堵。
(3)风管吊架采用双螺母锁定,螺杆露出螺杆为 2~3扣(为美观可加装螺帽)。
(4)风管穿墙处套管表面加设防火板封堵,在防火板四角用膨胀螺栓固定于墙体上,固定位置为四个角和四周每隔 200mm 处。防火板尺寸最少大于预留洞口 50mm。
示例照片:

5.5 水平风管穿防火墙做法
工艺流程:
核对施工图→统计安装位置→材料准备→人员组织→机具准备→施工制作→质量检验
控制要点:
风管穿过防火隔墙、楼板和防火墙时,穿越处风管上的防火阀、排烟防火阀两侧各 2.0m 范围内的风管应采用耐火风管或风管外壁应采取防火保护措施,且耐火极限不应低于该防火分隔体的耐火极限。
示例照片:


